+91 92077 42077, 98958 15009
  caddspacetcr@gmail.com
  7 Days Opened 8 AM to 7 PM

CAD WORKS

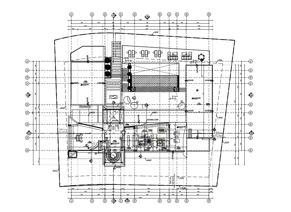
CS Innovate Solutions is staffed with expert and experienced team of draftsman, detailers and engineers who strive to provide Shop Drawing Services that becomes an integral part of every building construction project. The detailed shop drawings that we provide consists of information about measurements and arrangements of furniture and components according to the standards provided by the client. The Shop Drawings provides a detailed picture of the building before the construction commences. With the use of the information embedded in the shop drawing, architects and builders adopt the best construction technique in order to get desirable outputs.


Services

  1. Building Shop Drawings
  2. As-built Drawings
  3. Fabrication Drawings
  4. Millwork Drawings
  5. Furniture Drawings

What We Do?